В избранном
В избранное
Пожаловаться
Напечатать
Следить за ценой

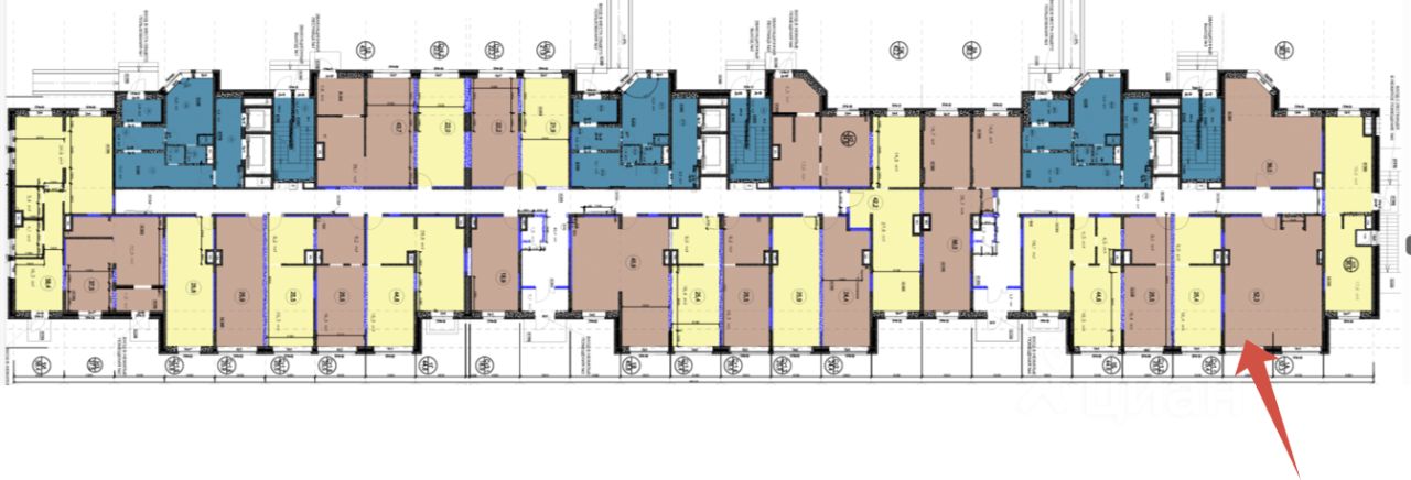
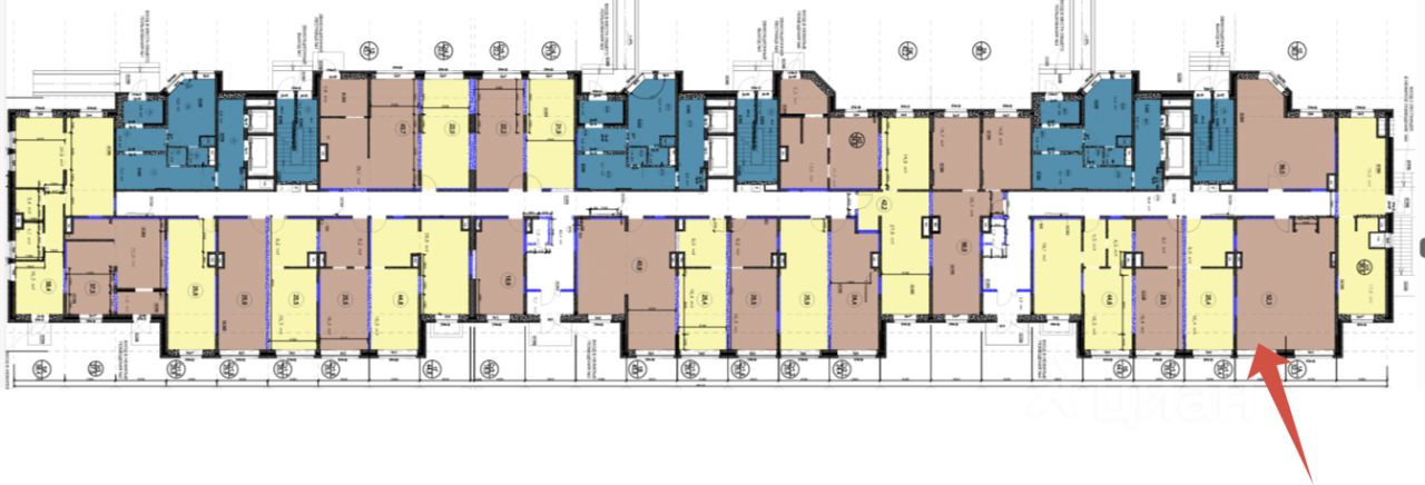
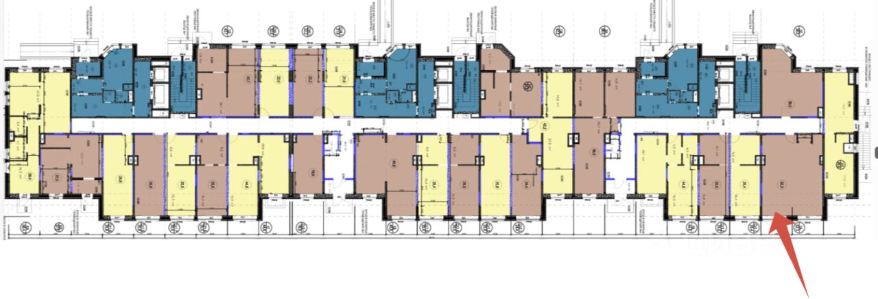
продам 2-к, Звенигородский Лес кп, 1 корп. 25 863 000 ₽

30 авг
Обн. сегодня
1
110 000 ₽/м²
  • Чистая продажа